top of page

High Rock
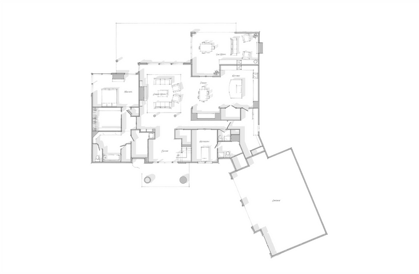
Big, natural trunks frame the riveting entry to this rustic plan. This house features an epic great hall and flexible features...
Sq. Ft.
4819
Bedrooms
3
Bathrooms
5
Floor Plan:
About the Design:
Organic, Rustic Luxury. This floor plan pulls the natural feel of large log posts in the entryway with proportional beam sizing to give a fortress feel of strength, in a family-friendly layout.
Home Design Gallery:
bottom of page







